110 Aaron Place #609, Lynchburg, VA 24502 (MLS # 363873)

Price $258,900
Status Active
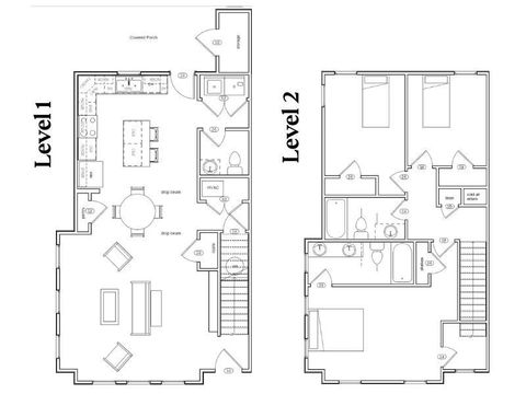
Beds 3
Baths 3 Baths
Home size 1,430 sqft
Lot Size 1,442 sqft
Days on Market 1
Designed with Character, Crafted with Care, Surrounded by Nature...Welcome to the Neighborhood...Creekstone!!! This newly built 3 bed, 2.5 bath interior unit townhome perfectly balances modern farmhouse charm with coastal-inspired design. From the shiplap walls & natural wood accents to black hardware and custom built-ins, every detail has been thoughtfully chosen. The open floor plan flows effortlessly into a stylish kitchen and cozy living space, while the mudroom adds everyday function with a polished touch. This low-maintenance home offers gorgeous LVP flooring throughout the main level, stained stair treads, quartz countertops, walk in closet & double vanity adorn the primary bath! A large covered rear porch overlooks privacy and peaceful views with easy access to the Heritage Park nature trails! This brand new community is conveniently located minutes from Liberty University, CVCC, Shopping, Dining, Medical, Downtown, & More! Move-in ready early November!
Property Type(s): Condo/Townhouse/Co-Op
Last Updated 1/8/2026 Tract Creekstone
Year Built 2025 County Lynchburg

SCHOOLS

School District Lynchburg
Elementary School Heritage Elem
Jr. High School Sandusky Midl
High School Heritage High

Additional Details

APPLIANCES Dishwasher, Electric Range, Electric Water Heater, Microwave
CONSTRUCTION Vinyl Siding
HEAT Heat Pump
HOA DUES 125
INTERIOR Pantry
LOT 1442 sq ft
PARKING Paved
SEWER Public Sewer
STORIES 2
SUBDIVISION Creekstone
TAXES 1975
UTILITIES Underground Utilities
WATER Public

Location

 

Contact us about this Property

 / 
We respect your online privacy and will never spam you. By submitting this form with your telephone number you are consenting for Steven Conner to contact you even if your name is on a Federal or State "Do not call List".

Listed with Keller Williams
Listing information is deemed reliable, but not guaranteed.

This IDX solution is (c) Diverse Solutions 2026.

Email a Friend

Reset password

Enter your email address and we will send you a link to change your password.

Powered by Estatik